Skip to main content
FOR SALE
$195,000

5220 Overton Avenue
Kansas City, MO 64133

Single Family
Residential
3
Beds
1
Baths
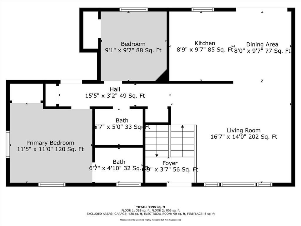
1,195
Sq. Ft.
0.17
Acre Lot
Agent Websites> Missouri> Kansas City> 64133
All new paint in this well maintained 3 bedroom home. Primary room features attached half bath, walk out finished basement area allows for extra living and storage space. Very clean and lots of natural light. Spacious backyard, check this one out!
2542058
Single Family, Traditional
3
Jackson
1 Full/1 Half
1965
0.17 Acres
Public Water
Frame
Public Sewer
True https://photos.prod.cirrussystem.net/993/a8d39eb4645548c4e1862423c02e0338/2049318283.jpeg 2542058
Loading...
Data Source: Constellation Data Labs®
The scores below measure the walkability of the address, access to public transit of the area and the convenience of using a bike on a scale of 1-100

Walk Score

Transit Score

Bike Score

Loading...
Data Provided by ATTOM Data®

Estimated Payment:

Principle & Interest
Taxes
Insurance
%
%
The information displayed on this page is confidential, proprietary, and copyrighted information of Heartland Multiple Listing Service, Inc. (Heartland MLS). Copyright 2022, Heartland Multiple Listing Service, Inc. Heartland MLS do not make any warranty or representation concerning the timeliness or accuracy of the information displayed herein. In consideration for the receipt of the information on this page, the recipient agrees to use the information solely for the private non-commercial purpose of identifying a property in which the recipient has a good faith interest in acquiring.
This content last refreshed on 4/13/2026 9:54 PM CST. Some properties which appear for sale on this web site may subsequently have sold or may no longer be available.
Information is deemed reliable but is not guaranteed.