Skip to main content
SOLD
$235,500
Date 06/27/2025

1403 NE 67th Street
Gladstone, MO 64118

Single Family
Residential
3
Beds
1
Baths
960
Sq. Ft.
0.34
Acre Lot
Agent Websites> Missouri> Gladstone> 64118
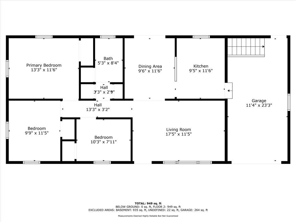
Multiple offers! Seller has not accepted offers as she's getting bids on foundation. Roof to be replaced soon too. When foundation work starts we will temporarily take it off the market until it's completed. Ranch Living in Prime Gladstone Location! This beautifully maintained 3-bedroom, 1-bath home offers 960 sq. ft. upstairs with a full 960 sq. ft. basement below - just the way a true ranch should be. Nestled on an oversized nearly 15,000 sq. ft. lot in a quiet Northland neighborhood, this gem is located outside of Kansas City limits, so you'll enjoy no earnings tax! Inside, you'll find stunning hardwood floors throughout, a bright and functional layout, and a brand new roof being installed by the seller. The home is move-in ready with the refrigerator, washer, dryer, and all kitchen appliances included - even the backyard grill stays! New roof being installed in May! Other major updates already completed include a replacement of the main sewer line Feb 2025 and the addition of a sump pump for peace of mind. The full basement is a blank canvas - offering space and flexibility to add bedrooms, a second living area, office, gym, or whatever your vision may be. A well-cared-for home with this much space, land, and potential in this price range is nearly impossible to find - you couldn't build the same home for anywhere near this price point. Don't miss your chance to make it yours!
2547323
Single Family, Traditional
3
Clay
1 Full
1958
0.34 Acres
Public Water
Vinyl Siding
Public Sewer
True https://photos.prod.cirrussystem.net/993/4c7116a8717df4cfa6e9de986ea99b46/105270963.jpeg 2547323
Loading...
Data Source: Constellation Data Labs®
The scores below measure the walkability of the address, access to public transit of the area and the convenience of using a bike on a scale of 1-100

Walk Score

Transit Score

Bike Score

Loading...
Data Provided by ATTOM Data®

Estimated Payment:

Principle & Interest
Taxes
Insurance
%
%
The information displayed on this page is confidential, proprietary, and copyrighted information of Heartland Multiple Listing Service, Inc. (Heartland MLS). Copyright 2022, Heartland Multiple Listing Service, Inc. Heartland MLS do not make any warranty or representation concerning the timeliness or accuracy of the information displayed herein. In consideration for the receipt of the information on this page, the recipient agrees to use the information solely for the private non-commercial purpose of identifying a property in which the recipient has a good faith interest in acquiring.
This content last refreshed on 3/11/2026 1:52 PM CST. Some properties which appear for sale on this web site may subsequently have sold or may no longer be available.
Information is deemed reliable but is not guaranteed.